Zum Hauptinhalt springen
Für Einfamilienhäuser oder Doppelhaushälften.
Keine Maklerprovision, keine Grunderwerbsteuer
Maklerprovision und Grunderwerbsteuer werden vom Verkäufer übernommen
Jetzt unverbindlich anfragen!
+49 (0) 172 2434330 · info@geissel.de

Doppelhaushälften

mit Baugenehmigung und Architektenpläne

Die Geissel Immobilien GmbH bietet Grundstücke in unterschiedlicher Größe zum Kauf an. Das Besondere daran ist, dass diese eine fertige Baugenehmigung mit sich bringen für modernste und energieeffizienteste Doppelhaushälften.

Exklusives Eigentum

  • Modernster Baustil
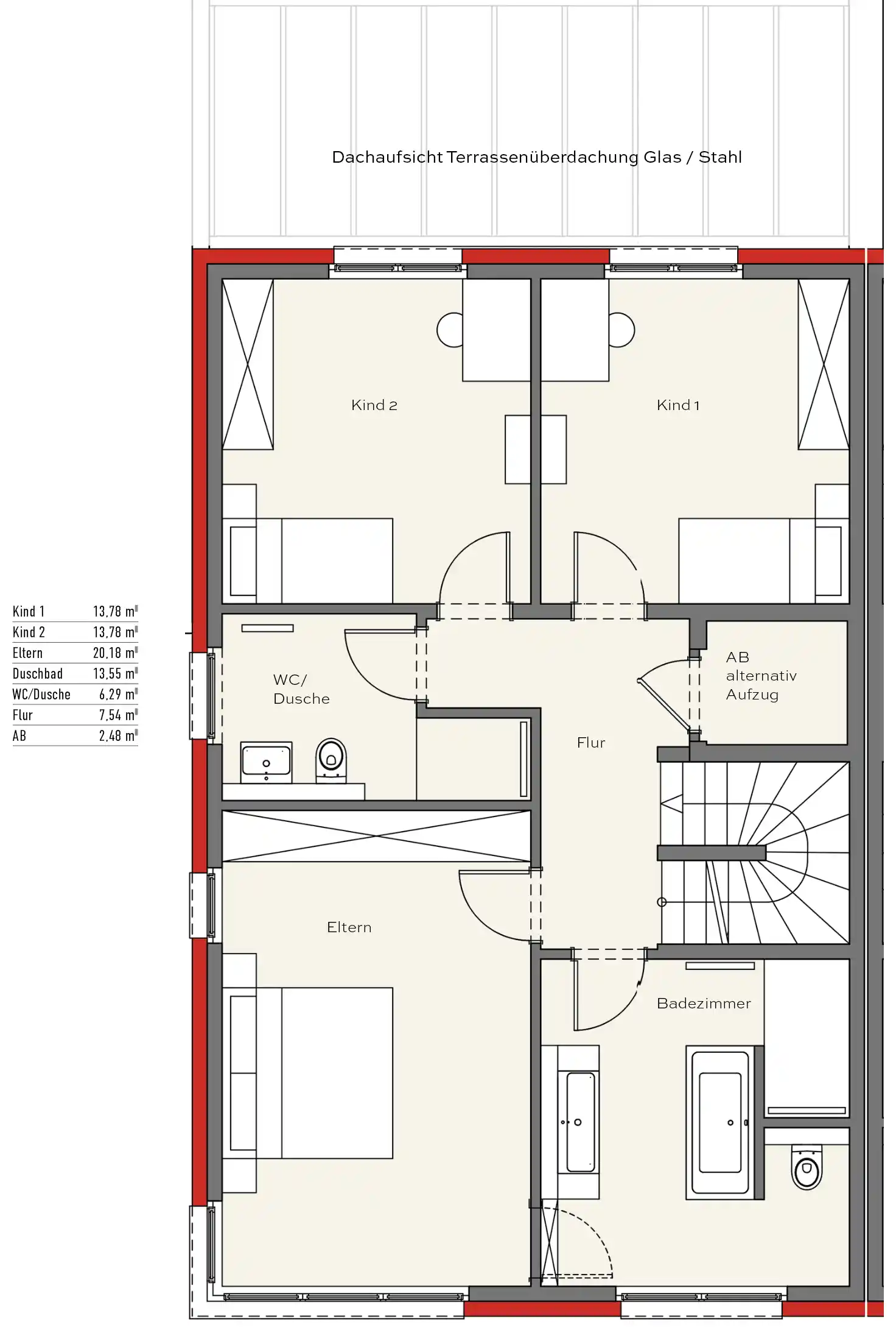
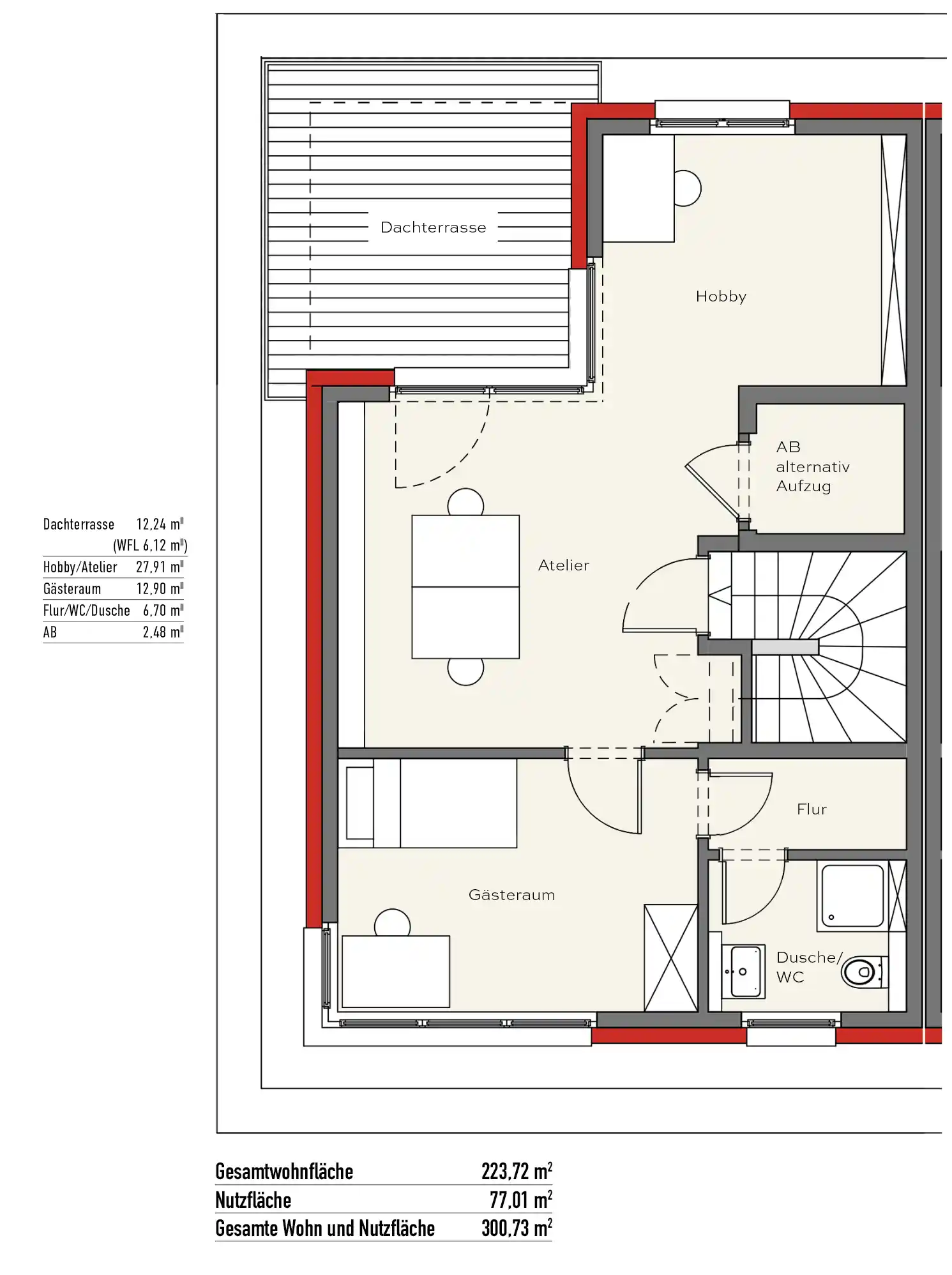
  • Sehr geräumig über 220m2 Wohnfläche
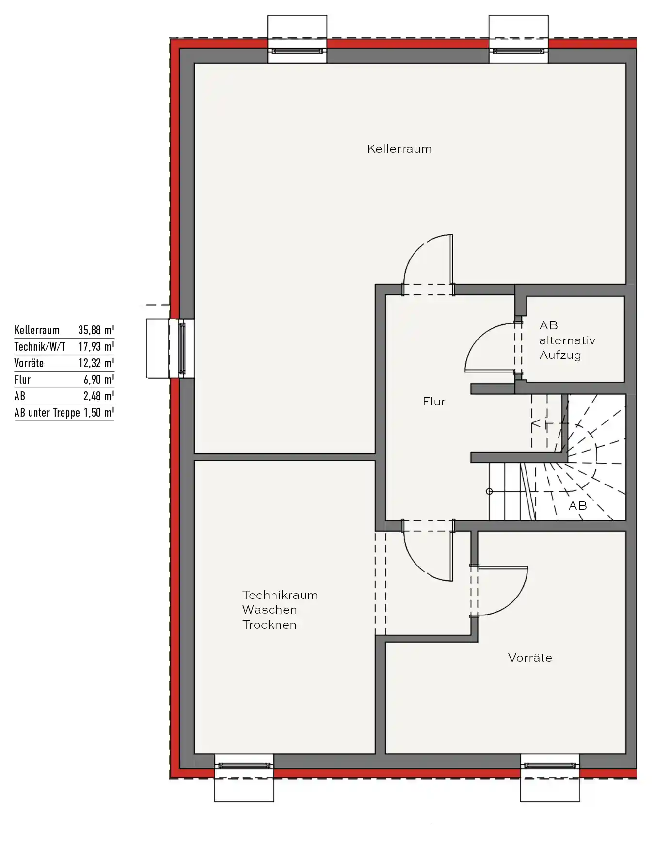
  • Individuell bebaubar mit oder ohne Aufzug
  • Eigene Garage
  • Mit großer Terrasse und Balkon nach Süden ausgerichtet mit Blick ins Naturschutzgebiet
  • Mit Blick ins Naturschutzgebiet